Consentimiento de Cookies



En Estudi Arquidam utilizamos cookies propias necesarias para el buen funcionamiento del sitio.

Para más información puede consultar "política de cookies".

n° visitas: 694915   |    |  Aviso legal
Volver.  
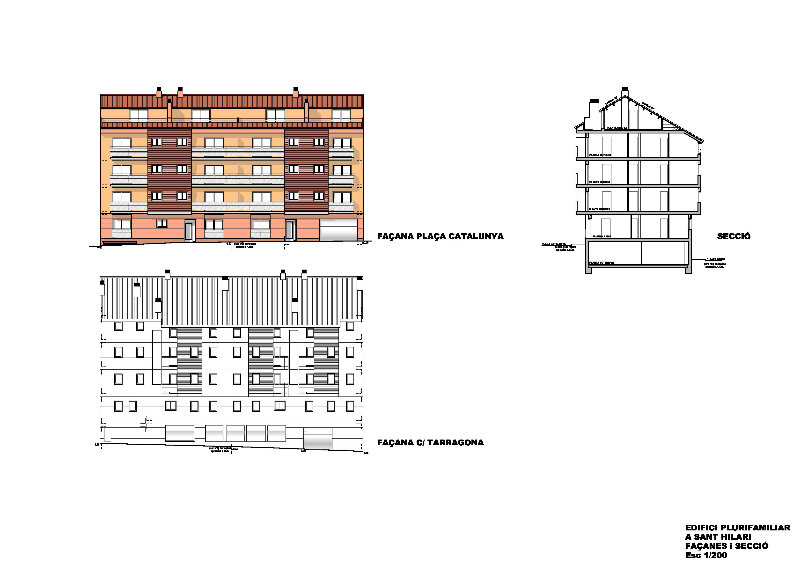
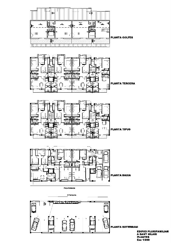
ST HILARI

Cargando
Espere porfavor...

 

____________________________________________________________________________________________________________________________________
 


Pl. Ciutat de Figueres, 1 bxs - 17003  - Girona  -  Tel. 972 414 096  -  Fax. 972 211 162  - arquidam@coac.net